14000:新築戸建 西水元2丁目新築8号棟(18棟現場)
| 価格 | 4,180万円 |
|---|---|
| 所在地 | 葛飾区西水元2丁目 |
| 交通 | 葛飾 西水元まで バス12分 停歩2分 |
| 最寄駅 | 金町駅まで バス12分 |
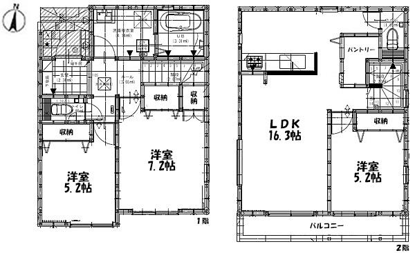
| 間取 | 3LDK |
| 土地面積 | 88.87m²(26.88坪) |
| 建物面積 | 84.05m²(25.42坪) |
| 私道面積 | |
| 築年月 | 2026/01 |
| 学区 | 小学校区:幸田小学校 302m 中学校区:葛美中学校 574m |
| 建物構造 | 木造 |
|---|---|
| 階建 | 地上2階建 |
| 建ぺい率 | 50% |
| 容積率 | 150% |
| 地目 | 田 |
| 用途地域 | 第二種低層住居専用地域 |
| 土地権利 | 所有権 |
| 取引態様 | 仲介 |
| 引渡時期 | 2026年01月下旬 |
| セットバック | |
|---|---|
| 接道 | 西 5m(幅員) 私道 |
| 諸費用 | |
| 他法条例 | |
| 建築確認番号 | |
| 取引条件有効期限 | 令和07年12月23日 |
特色
住宅性能保証付き、バリアフリー、駐車場、公営水道、都市ガス、公共本下水
コメント
【葛飾区西水元2丁目・幸田小学校区・葛美中学校区・新築一戸建】、当店なら仲介手数料無料、3LDK+駐車場付、LDKはゆったり16.3帖の広さ、人気のカウンターキッチン、食器洗乾燥機付、閑静な住宅街 ※取引条件有効期限 2025年12月25日
周辺地図
位置情報に関するご注意:現在位置情報は精査中の為、正確ではない場合があります。あくまで参考程度の情報となります。







