物件番号 Bk14203
種目 新築戸建 価格 3,980万円
交通 水元まで バス9分 停歩4分 所在地 葛飾区水元4丁目
土地面積 50m2 ( 15.12坪 ) 建物面積 86.35m2 ( 26.12坪 )
間取 3LDK 間取詳細 LDK15.6、洋4.37、洋5.25、洋6.12
建ぺい率 60% 容積率 160%
構造 木造 地目 宅地
土地権利 所有権 用途地域 第一種中高層住居専用地域
取引態様 専任媒介 築年月 R08/09
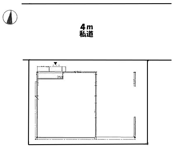
引渡時期 令和08年09月上旬 接道1 北 4m(幅員) 私道
学区 小学校区:水元小学校 347m
中学校区:水元中学校 365m
接道2  
特色 バリアフリー、駐車場、公営水道、都市ガス、公共本下水
Webコメント 【葛飾区水元4丁目・水元小学校区・水元中学校区・新築一戸建】、当店なら仲介手数料無料、3LDK+駐車場付、LDKはゆったり15.6帖の広さ、人気のカウンターキッチン、閑静な住宅街 ※取引条件有効期限 2026年5月14日
物件名 水元4丁目新築一戸建(1棟現場)
詳細
拡大してご覧になれます
 
拡大してご覧になれます
 
拡大してご覧になれます
 
拡大してご覧になれます
 
拡大してご覧になれます
 
拡大してご覧になれます
 
拡大してご覧になれます
 
拡大してご覧になれます
 
拡大してご覧になれます
 
ローンを組むにあたり、月々の返済額をシミュレーションします。

物件価格
3,980 万円
頭金
万円
内ボーナス
万円
金利
%
借入期間
※ こちらの計算は、「元利均等返済」で算出しています。
※ 金利は、変動金利(優遇金利)を採用しています。
※ シミュレーションでの結果は、あくまでも目安で、概算になります。
    ローンの詳細に関しては、お気軽に当社にご確認ください。
※ 実際のローン契約時には諸費用・税金(手数料や印紙税、保証料など)が
    別途かかりますので、詳細に関しては当社にご確認ください。
月々の返済額
地図
地図を右クリックでルート検索が可能です。
移動方法: 徒歩
位置情報に関するご注意:現在位置情報は精査中の為、正確ではない場合があります。あくまで参考程度の情報となります。
掲載されている物件データが現況と異なる場合は現況を優先します。