物件番号 Bk14189
種目 新築戸建 価格 4,890万円
交通 水元まで バス10分 停歩3分 所在地 葛飾区水元5丁目
土地面積 99.6m2 ( 30.12坪 ) 建物面積 94.39m2 ( 28.55坪 )
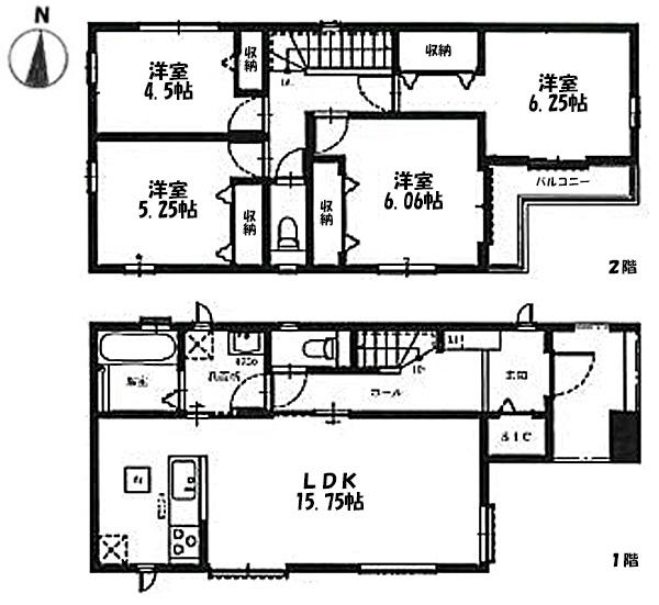
間取 4LDK 間取詳細 LDK15.75、洋4.5、洋5.25、洋6.06、洋6.25
建ぺい率 50% 容積率 150%
構造 木造 地目 宅地
土地権利 所有権 用途地域 第二種低層住居専用地域
取引態様 仲介 築年月 R08/08
引渡時期 令和08年08月中旬 接道1 東 9.6m(幅員) 公道
学区 小学校区:水元小学校 357m
中学校区:葛美中学校 561m
接道2  
特色 住宅性能保証付き、バリアフリー、駐車場、公営水道、都市ガス、公共本下水
Webコメント 【葛飾区水元5丁目・水元小学校区・葛美中学校区・新築一戸建】、当店なら仲介手数料無料、4LDK+駐車場付、公道面、土地面積はゆったり30.12坪の広さ、LDKはゆったり15.75帖の広さ、人気のカウンターキッチン、閑静な住宅街 ※取引条件有効期限 2026年6月11日
物件名 水元5丁目新築B号棟(4棟現場)
詳細
拡大してご覧になれます
 
拡大してご覧になれます
 
拡大してご覧になれます
 
拡大してご覧になれます
 
拡大してご覧になれます
 
拡大してご覧になれます
 
拡大してご覧になれます
 
拡大してご覧になれます
 
拡大してご覧になれます
 
拡大してご覧になれます
 
ローンを組むにあたり、月々の返済額をシミュレーションします。

物件価格
4,890 万円
頭金
万円
内ボーナス
万円
金利
%
借入期間
※ こちらの計算は、「元利均等返済」で算出しています。
※ 金利は、変動金利(優遇金利)を採用しています。
※ シミュレーションでの結果は、あくまでも目安で、概算になります。
    ローンの詳細に関しては、お気軽に当社にご確認ください。
※ 実際のローン契約時には諸費用・税金(手数料や印紙税、保証料など)が
    別途かかりますので、詳細に関しては当社にご確認ください。
月々の返済額
地図
地図を右クリックでルート検索が可能です。
移動方法: 徒歩
位置情報に関するご注意:現在位置情報は精査中の為、正確ではない場合があります。あくまで参考程度の情報となります。
掲載されている物件データが現況と異なる場合は現況を優先します。