13995:新築戸建 東水元3丁目新築B号棟(3棟現場)
| 価格 | 5,390万円 |
|---|---|
| 所在地 | 葛飾区東水元3丁目 |
| 交通 | 葛飾 東水元まで バス7分 停歩2分 |
| 最寄駅 | 金町駅まで バス7分 |
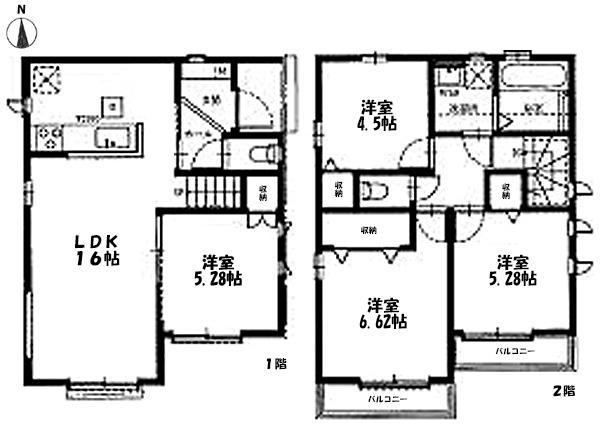
| 間取 | 4LDK |
| 土地面積 | 100.59m²(30.42坪) |
| 建物面積 | 86.21m²(26.07坪) |
| 私道面積 | |
| 築年月 | 2025/11 |
| 学区 | 小学校区:東水元小学校 862m 中学校区:水元中学校 222m |
| 建物構造 | 木造 |
|---|---|
| 階建 | 地上2階建 |
| 建ぺい率 | 45% |
| 容積率 | 150% |
| 地目 | 宅地 |
| 用途地域 | 第二種低層住居専用地域 |
| 土地権利 | 所有権 |
| 取引態様 | 仲介 |
| 引渡時期 | 即時 |
| セットバック | |
|---|---|
| 接道 | 東 6m(幅員) 公道 |
| 諸費用 | |
| 他法条例 | |
| 建築確認番号 | |
| 取引条件有効期限 | 令和07年12月23日 |
特色
住宅性能保証付き、バリアフリー、駐車場(2台分)、公営水道、都市ガス、公共本下水
コメント
【葛飾区東水元3丁目・東水元小学校区・水元中学校区・新築一戸建】、当店なら仲介手数料無料、4LDK+駐車場2台付、公道面、土地面積はゆったり30.42坪の広さ、LDKはゆったり16帖の広さ、人気のカウンターキッチン、屋根裏収納庫付、人気の都立水元公園まで徒歩3分、閑静な住宅街 ※取引条件有効期限 2025年12月25日
周辺地図
位置情報に関するご注意:現在位置情報は精査中の為、正確ではない場合があります。あくまで参考程度の情報となります。






















































