
| 価格 | 4,180万円 |
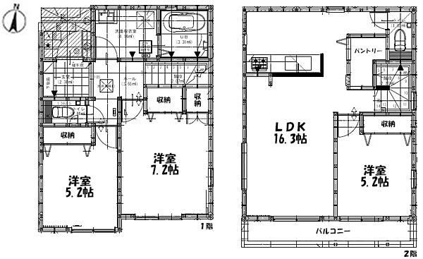
| 間取 | 3LDK |
| 間取詳細 | LDK16.3、洋5.2、洋5.2、洋7.2 |
| 所在地 | |
| 学区 | 幸田小学校 302m/葛美中学校 574m |
| 最寄施設 | 最寄駅 金町駅 バス12分 |
| 種目 | 新築戸建 |
| 土地面積 | 88.87m² |
| 建物面積 | 84.05m² |
| 建ぺい率 | 50% |
| 容積率 | 150% |
| 建物構造 | 木造 |
| 地目 | 田 |
| 土地権利 | 所有権 |
| 用途地域 | 第二種低層住居専用地域 |
| 取引態様 | 仲介 |
| 築年月 | 2026/01 |
| 引渡時期 | 即時 |
| 接道 | 西 5m(幅員) 私道 |
| 特色 | 住宅性能保証付き、バリアフリー、駐車場、公営水道、都市ガス、公共本下水 |
| 情報更新日 | 2026年02月06日 |
| 次回更新予定日 | 2026年02月07日 |
| 取引条件有効期限 | 2026年02月06日 |
| 物件価格 | 4,180万円 |
| 頭金 | 万円 |
| 金利 | % |
| 借入期間 | 年 |
| 月々の返済額 | |
| 年間の返済額 | |
| 返済総額 | |
| 利息合計 |
【葛飾区西水元2丁目・幸田小学校区・葛美中学校区・新築一戸建】、当店なら仲介手数料無料、3LDK+駐車場付、LDKはゆったり16.3帖の広さ、人気のカウンターキッチン、食器洗乾燥機付、閑静な住宅街 ※取引条件有効期限 2026年2月19日