西水元6丁目新築4号棟(4棟現場)

価格 4,190万円

1/47
Point

【葛飾区西水元6丁目・幸田小学校・葛美中学校・新築一戸建】、当店なら仲介手数料無料、4SLDK+駐車場付、南公道面の為日当たり良好、土地面積はゆったり30.24坪の広さ、LDKはゆったり17帖の広さ、人気のカウンターキッチン、閑静な住宅地 ※取引条件有効期限 2025年11月13日

物件番号「13955」をお伝えください。

電話でお問合せ LINEでお問合せ

物件情報

価格 4,190万円
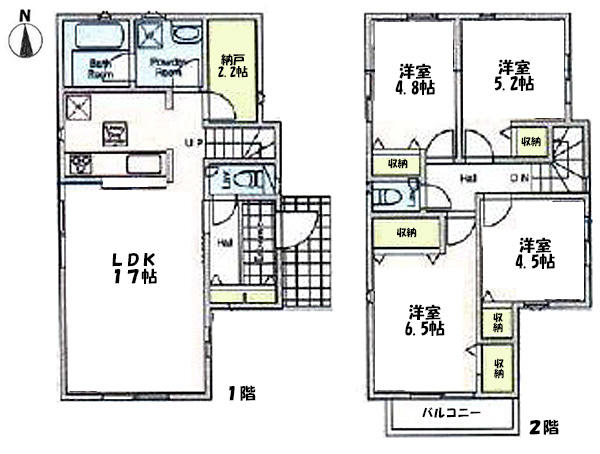
間取 4SLDK
間取詳細 LDK17、洋4.5、洋4.8、洋5.2、洋6.5、納戸2.2
所在地
葛飾区西水元6丁目 地図
学区 幸田小学校 605m/葛美中学校 790m
最寄施設 最寄駅 金町駅 バス13分 
種目 新築戸建
土地面積 99.97m²
建物面積 91.52m²
建ぺい率 50%
容積率 100%
建物構造 木造
地目 宅地
土地権利 所有権
用途地域 第一種低層住居専用地域
取引態様 仲介
築年月 2025/08
引渡時期 即時
接道 南 9m(幅員) 公道
特色 住宅性能保証付き、バリアフリー、駐車場、南道路、公営水道、都市ガス、公共本下水
※掲載されている物件データが現状と異なる場合は現状を優先します。

更新情報

情報更新日 2025年11月04日
次回更新予定日 2025年11月06日
取引条件有効期限 2025年11月04日

ローンシミュレーション

物件価格 4,190万円
頭金 万円
金利
借入期間
再計算
月々の返済額
年間の返済額
返済総額
利息合計
※ 毎回の返済額が開始から終了まで均等となる「元利均等返済」で算出しています。
※ 金利は期間中固定となる固定金利を採用しています。
※ 月々の返済額は小数点以下を繰り上げしております
※ シミュレーションでの結果は、あくまでも目安で、概算になります。実際にローン契約をする際は、詳細を金融機関にご確認ください。
※ 実際のローン契約時には諸費用・税金(手数料や印紙税、保証料など)が別途かかりますので、契約の際にご確認ください。

物件番号「13955」をお伝えください。

電話でお問合せ LINEでお問合せ
電話 メール LINE
簡易お問合せ

お名前


メールアドレス


問合せ内容


OK