|
中古戸建
[価格]
3,390万円
水元4丁目中古一戸建
|
||||
|---|---|---|---|---|
| 所在地 | 沿線/駅 バス徒歩 |
構造 間取 |
土地面積 建物面積 |
築年月 引渡時期 |
| 葛飾区水元4丁目 | 葛飾/水元 バス10分 停歩4分 |
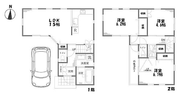
木造 3LDK |
66.19m² 75.77m² |
2011/01 即時 |

| 物件番号 | 14100 | ||
|---|---|---|---|
| 交通 | 葛飾 水元まで バス10分 停歩4分 | 学区 | 水元小学校 236m 水元中学校 361m |
| 建ぺい率 | 60% | 容積率 | 180% |
| 地目 | 宅地 | 用途地域 | 第一種中高層住居専用地域 |
| 取引態様 | 仲介 | 築年月 | 2011/01 |
| 土地権利 | 所有権 | 接道 | 南 4.5m(幅員) 私道 |
| 間取詳細 | LDK15、洋4.6、洋6.1、洋6.2 | ||
| 特色 | 駐車場、南道路、公営水道、オール電化、公共本下水 | ||
| 取引条件有効期限 | 2026年02月06日 | ||
|
地図を右クリックでルート検索が可能です。
|